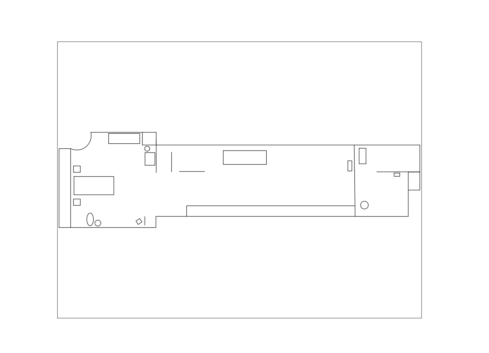
I taught myself AutoCAD.Web and SketchUp out of pure curiosity and a desire to bring my ideas to life. What started as late-night tutorials and practice models quickly grew into a full redesign of my own room—a space I’ve been slowly shaping into something that truly reflects my style. It’s still a work in progress, but that’s part of what makes it exciting. Each update, each new detail, is another step in learning, experimenting, and growing as a designer.

Previous
Previous

Midcentury Ranch Makeover